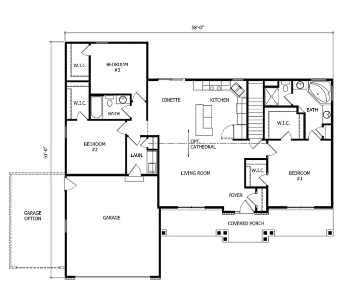
About the Huntington Home
The moment you walk into the Huntington you will appreciate the airy and open living design. The split-bedroom layout is a must for many homeowners, with each bedroom featuring its very own walk-in closet (the owner suite including two)!



