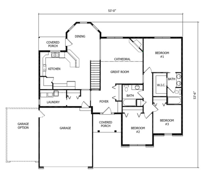
About the Desert Ridge Home
Whether you prefer warmer or cooler tones, the Desert Ridge’s exterior is nothing short of charming. This ranch has everything you need, including a picturesque dining nook to gather around at the end of a long day.
Don Peart Custom Homes, Inc

Whether you prefer warmer or cooler tones, the Desert Ridge’s exterior is nothing short of charming. This ranch has everything you need, including a picturesque dining nook to gather around at the end of a long day.