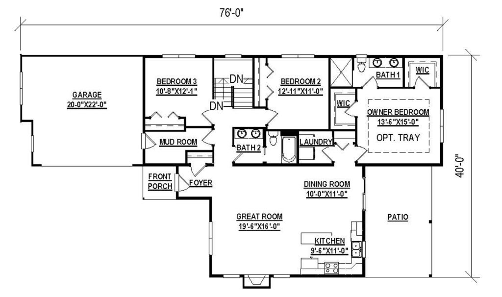
About the Aspen Creek Home
The Aspen Creek features a sloped tray ceiling in the owner’s bedroom and, vaulted ceilings in the kitchen, dining room, and great room. Laundry is conveniently located on the main floor. His and her walk-in closets are in the owner’s bedroom. The plan also includes an optional covered rear patio.



